|
Home
Im Bau

Laupheim
Lange Straße - Eigentumswohnungen

Ihr Zuhause am Tor zur Stadt

 

Wohnen in der Langen Straße in Laupheim vereint die Ruhe der Natur mit kurzen Wegen und der Nähe zur Stadt. Hier findet jeder seinen individuellen Wohntraum: Von der altersgerechten 2-3-Zimmer-Wohnung mit praktischem barrierefreiem Grundriss über die pfiffige 5-Zimmer-Familienwohnung auf zwei Ebenen bis hin zur Dachwohnung mit Galerie und Luftraum: Für Jung und Alt sowie für Kapitalanleger und Eigennutzer ist hier die passende Wohnung dabei. Ein Projekt für Menschen mit hohen Wohnansprüchen im Hinblick auf Lage, Architektur, Ausstattung und Energieeffizienz.

 

Wir bauen immer energetisch besser als es der Gesetzgeber mit dem Gebäudeenergiegesetz (GEG 2023) fordert. Die Dämmhülle des Projekts erfüllt in Verbindung mit der geplanten Heizungsanlage die Vorgaben für die Effizienzhaus-Stufe 40. Das sorgt für mehr Komfort und schont die Umwelt.

Eckdaten

Aktueller Projekt Status
Im Bau
Wohnfläche
72m² 136m²
Nutzfläche
8m² 24m²
Grundstück
1.228m²
Preis
ab 407.753€

Grundrisse

Änderungen vorbehalten (Stand Dezember 2025)

3-Zimmer Wohnung

Barrierefrei

Wohn-/Küchen-/Essbereich mit direktem Zugang zur Terrasse

Terrasse nach Süden


Wohnfläche gesamt
106,57 m²
Freifläche
106,00 m²

2-Zimmer Wohnung

Barrierefrei

Wohn-/Küchen-/Essbereich mit direktem Zugang zur Terrasse

Terrasse nach Süden


Wohnfläche gesamt
71,64 m²
Freifläche
44,00 m²

2-Zimmer Wohnung

Barrierefrei

Wohn-/Küchen-/Essbereich mit direktem Zugang zur Terrasse

Terrasse nach Süden


Wohnfläche gesamt
72,93 m²
Freifläche
45,00 m²

3-Zimmer Wohnung

Barrierefrei

Wohn-/Küchen-/Essbereich mit direktem Zugang zur Terrasse

Terrasse nach Süden


Wohnfläche gesamt
106,67 m²
Freifläche
200,00 m²

Großzügige Maisonettewohnung

Wohn-/Küchen-/Essbereich mit direktem Zugang zum Balkon

Galerie/Wohnbereich im DG

Balkon nach Süden


Wohnfläche gesamt
135,60 m²
Nutzfläche gesamt
23,60 m²

2-Zimmer Wohnung

Wohn-/Küchen-/Essbereich mit direktem Zugang zum Balkon

Balkon nach Süden


Wohnfläche gesamt
72,80 m²

2-Zimmer Wohnung

Wohn-/Küchen-/Essbereich mit direktem Zugang zum Balkon

Balkon nach Süden


Wohnfläche gesamt
73,27 m²

3-Zimmer Wohnung

Wohn-/Küchen-/Essbereich mit direktem Zugang zum Balkon

Balkon nach Süden


Wohnfläche gesamt
106,06 m²

Großzügige Maisonettewohnung mit Balkon und Dachterrasse

Wohn-/Küchen-/Essbereich mit direktem Zugang zu Balkon und Dachterrasse

Schlafzimmer mit Ankleideraum und Zugang zur Dachterrasse

Balkon nach Süden

 

 


Wohnfläche gesamt
134,00 m²
Nutzfläche gesamt
10,81 m²

Großzügige Maisonettewohnung

Wohn-/Küchen-/Essbereich mit direktem Zugang zum Balkon

Galerie/Wohnbereich im 2. DG

Balkon nach Süden


Wohnfläche gesamt
110,61 m²
Nutzfläche gesamt
8,30 m²

Wohnung 1 EG

Gesamtfläche EG inklusive Grundfläche der Innenwände
Kochen/Essen/Wohnen
39,92 m²
Schlafen
16,36 m²
Kind
12,30 m²
Flur/Garderobe
17,30 m²
Bad
8,35 m²
WC
2,19 m²
Abstellraum
3,69 m²
Terrasse 26,03m²x0,25
6,46 m²

Wohnfläche
106,57 m²

Wohnung 2 - Erdgeschoss

Barrierefreie 2-Zimmer-Wohnung mit Terrasse und Garten
Kochen/Essen/Wohnen
36,72 m²
Schlafen
14,60 m²
Flur/Garderobe
8,05 m²
Bad
6,67 m²
Terrasse 22,55m²x0,25
5,60 m²

Wohnfläche
71,64 m²

Wohnung 3 Erdgeschoss

Barrierefreie 2-Zimmer-Wohnung mit Terrasse und Gartenanteil
Kochen/Essen/Wohnen
37,40 m²
Schlafen
14,86 m²
Flur/Garderobe
7,78 m²
Bad
7,29 m²
Terrasse 22,54m²x0,25
5,60 m²

Wohnfläche
72,93 m²

Wohnung 4 Erdgeschoss

Barrierefreie 3-Zimmer-Wohnung mit Terrasse und großem Gartenanteil
Kochen/Essen/Wohnen
40,14 m²
Schlafen
16,36 m²
Kind
12,09 m²
Bad
8,44 m²
Abstellraum
3,84 m²
WC
2,19 m²
Flur/Garderobe
17,32 m²
Terrasse 25,32m²x0,25
6,29 m²

Wohnfläche
106,67 m²

Wohnung 5 Maisonette

Großzügige Maisonette-Wohnung mit raffiniertem Grundriss
Kochen/Essen/Wohnen
38,89 m²
Schlafen
14,97 m²
Kind
12,68 m²
Flur/Garderobe
16,70 m²
Bad
8,76 m²
Abstellraum
3,73 m²
WC
2,19 m²
Balkon 11,08m²x0,50
5,54 m²
Galerie/Wohnen DG
32,14 m²

Wohnfläche
135,60 m²
Dachboden
23,60 m²

Wohnung 6 Obergeschoss

Sonnige 2-Zimmer-Wohnung mit Aufzug und Balkon
Kochen/Essen/Wohnen
37,57 m²
Schlafen
14,61 m²
Bad
6,96 m²
Flur/Garderobe
7,95 m²
Balkon 11,49m²x0,50
5,71 m²

Wohnfläche
72,80 m²

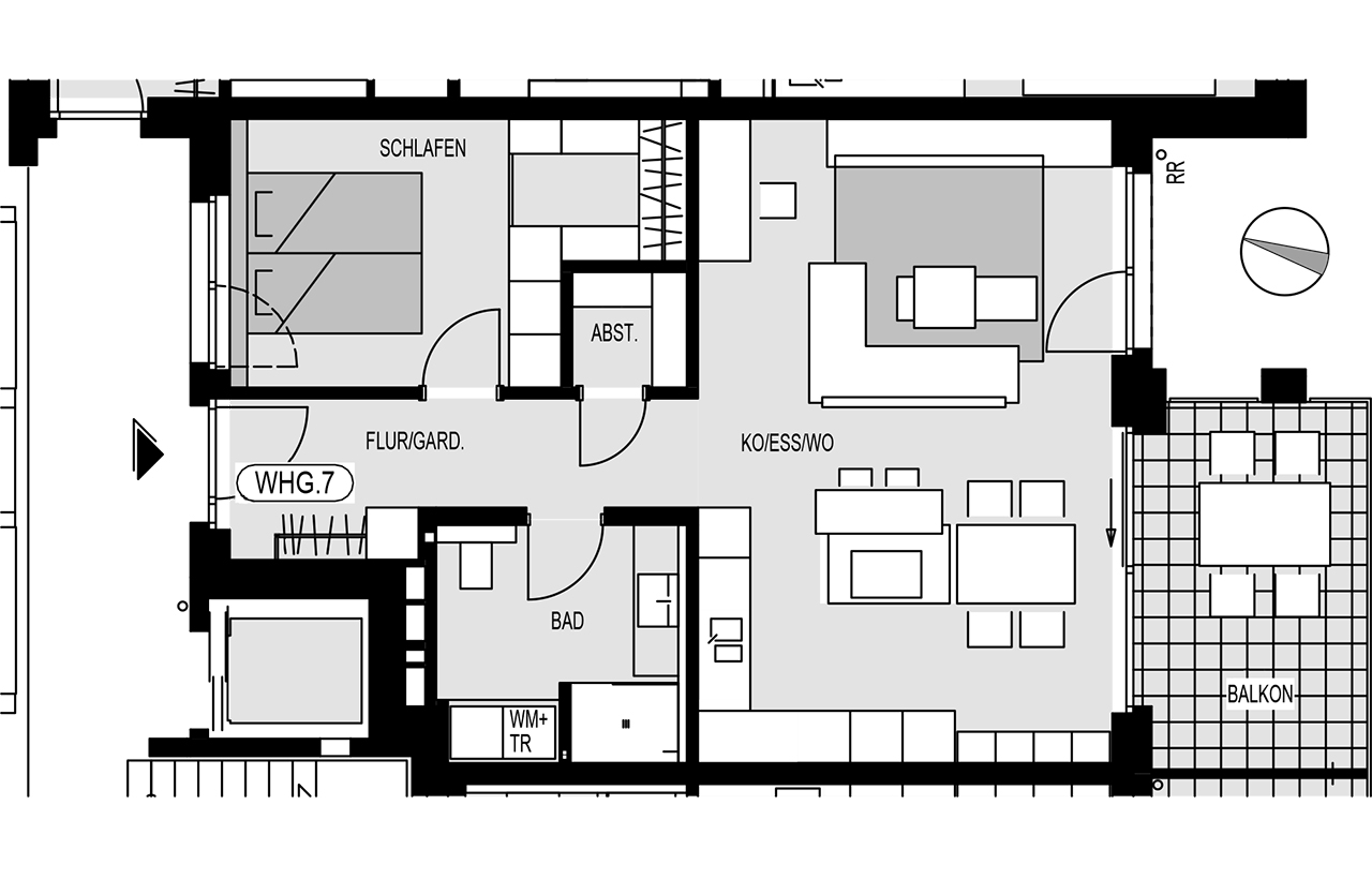
Wohnung 7 Obergeschoss

Moderne 2-Zimmer-Wohnung mit Aufzug und Südbalkon
Kochen/Essen/Wohnen
37,54 m²
Schlafen
14,79 m²
Bad
7,61 m²
Flur/Garderobe
7,83 m²
Balkon 11,09m²x0,50
5,50 m²

Wohnfläche
73,27 m²

Wohnung 8 Obergeschoss

Großzügige 3-Zimmer-Wohnung mit Gäste-WC
Kochen/Essen/Wohnen
40,14 m²
Schlafen
16,36 m²
Kind
12,14 m²
Flur/Garderobe
17,31 m²
Bad
8,41 m²
Abstellraum
3,84 m²
WC
2,18 m²
Balkon 11,53m²x0,50
5,68 m²

Wohnfläche
106,06 m²

Wohnung 9 Maisonette

Traumwohnung mit uneinsehbarer Dachterrasse
Kochen/Essen/Wohnen
48,79 m²
Schlafen
12,16 m²
Ankleideraum
5,98 m²
Büro/Gast
11,42 m²
Bad
7,92 m²
WC
2,98 m²
Flur/Garderobe
9,99 m²
Balkon 16,72m²x0,50
8,36 m²
Terrasse 18,20m²x0,50
9,10 m²
Empore 2. DG
17,30 m²

Wohnfläche
134,00 m²
Dachboden 2. OG
10,81 m²

Wohnung 9 DG 2

Wohnung 10 Maisonette

Hell, sonnig, großzügig... 4-Zimmer-Maisonette mit ganz besonderem Charme
Kochen/Essen/Wohnen
38,75 m²
Schlafen
11,60 m²
Büro/Gast
11,52 m²
Bad
9,16 m²
WC
2,24 m²
Flur/Garderobe
17,73 m²
Balkon 11,36m²x0,50
5,68 m²
Empore
13,93 m²

Wohnfläche
110,61 m²
Dachboden
8,30 m²

Wohnung 10 DG 2

Lage

88471 88471
88471 Laupheim

Bauphase

Zur Übersicht